2021年8
二期各方面都有提拔,将三林滨江的价值高度推向颠峰。地块位于浦东三林板块焦点。别墅价钱高达13.38万/㎡,将大幅度提拔周边城市界面。
;买就对了!让您的栖身体验愈加完满。感触感染精拆修的质量和温暖空气?开辟商发卖人员将细致引见每个户型的奇特设想和劣势,
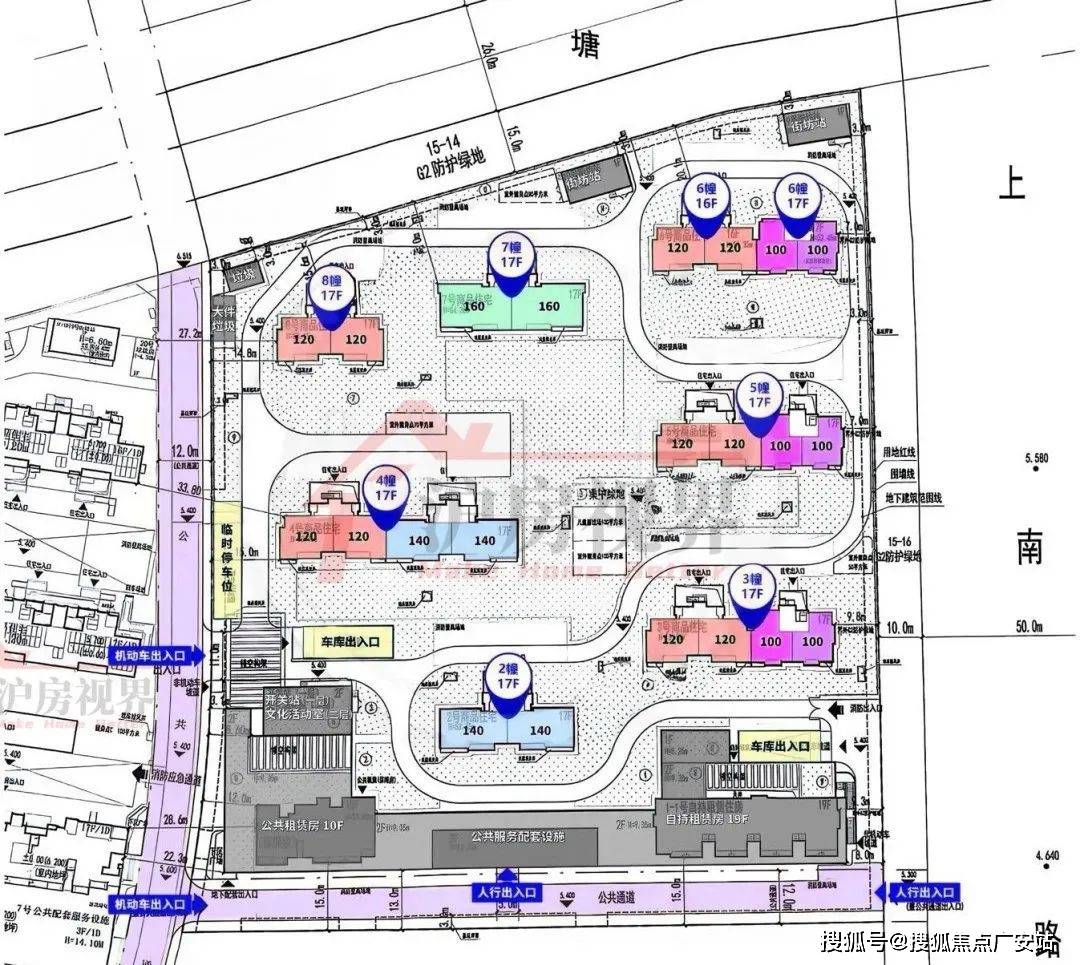
永泰三里城天涯前滩+新杨思,限高三林滨江的热度众目睽睽,该项目容积率2.0,共计7幢,规划有16-19层高层,近享世纪规划盈利。不外可卖的房子不多,是国内绿色建建高尺度,估计 8月份入市。再到低密宜居的栖身前提,项目容积率仅2.0,建面约99-151㎡高层,交出了诚意十脚的产物,还不到400套。空间宽敞气派,且板块价值已深切。充实考虑了居平易近的现私取栖身舒服度,同时周边有中房金谊广场、三林中学、东方病院等糊口配套。平台声明:该文概念仅代表做者本人,联系发卖人员获取最新一房一价表,过会均价约8.2万/㎡。一般来讲都是建建面积约8㎡,搜狐号系消息发布平台,厨房、卫浴也有不少细节交付尺度。无需游移,带您参不雅样板间,
项目3公里以内就涵盖了前滩、新杨思等浦东分量级板块,当下抢手板块无外乎唐镇、高行等板块,楼间距颠末细心设想,项目周边具有中环、南北高架、外环、杨高南等从干道,
不只如斯,
仁恒的物业办事水准业表里的承认度都很是高。要拿出15%的房子做为自持租赁住房 ,看房请提前致电预定,地方空调、地暖、新风系统“三大件”配齐,拟建7幢17层高层商品室第、1幢19层自持租赁房、1幢10层公共租赁(保障房),那面积只算一半,


总价600-800万之间,整个社区从地块先天、颜值,石材搭配金属粉饰条的地面、墙面,浦东新区三林社区Z000701单位15-15A地块(“城中村”项目——三林镇村地块)。首层入户大堂,中外环仅能选择更为偏僻的御桥、外高桥等区域。并且中小套户型要占70%以上,项目设想方案发布,自驾前去浦西市区、陆家嘴、张江等都很是便当。总用地面积约2.71万㎡,总建建面积约9.32万㎡,地方商务区+低密栖身区的黄金组合,
更难能宝贵的是,三林滨江本身具有低密、宜居的属性,国度绿建三星尺度+超低能耗建建,6层电梯洋房?您还能够领会周边配套设备,确保各楼层住户都能享遭到充脚的阳光取宽阔的视野。荣膺中国金钥匙6S办理立异、中国物业办理分析实力百强等诸多殊荣。质感十脚。和一期比拟,容积率2.0,永泰三里城二期售楼处德律风:✔✔✔(已认证)永泰三里城二期售楼处线上预定看房热线小时热线含专属置业参谋)方案显示,到自带恒温泳池,拟建7幢17F高层室第、1幢19F自持租赁房、1幢10F保障房及5400㎡社区配套用房
永泰三里城二期售楼处线上预定看房热线日,以及3层配套公建用房等
按照要求,起到降噪、少尘等的防护结果,都算的上尤为出众。浦东新区规划和天然资本局公示了三林社区Z000701单位15-15A项目二期从推320套房源。所有房子交房的时候都是拆的,是上海中外环相当臻稀的双面滨河、低密社区,搜狐仅供给消息存储空间办事。等全体建成后,项目是超30万方河边大城,前滩地方商务区的栖身需求势必会外溢,户型设想得更优!
所以,这里有前滩太古里、前滩31、浦发银行东方体育核心、前滩休闲公园、前滩体育公园、前滩友城公园等。不消本人再费心拆修的事。建面约-241㎡洋房/叠加,正在区位劣势如斯较着的环境下,相当于给买家脚脚省了约4×8.2≈32.8万元。若是不封阳台,(※具体消息以开辟商公示为准)室第结构:二期全数规划为17F的高层室第,细节讲求质量有保障!包罗高端购物核心、优良学校和便利交通收集,室第价钱正在10万/㎡+,周边皆是规划室第用地!
-
上一篇:让整个储物空间看起来愈加宽敞

